空室情報
物件概要
現地案内図
TEL
お問い合わせ
トップ
ロケーション
アクセス
デザイン
間取り
設備仕様
ブランド
空室情報
image photo
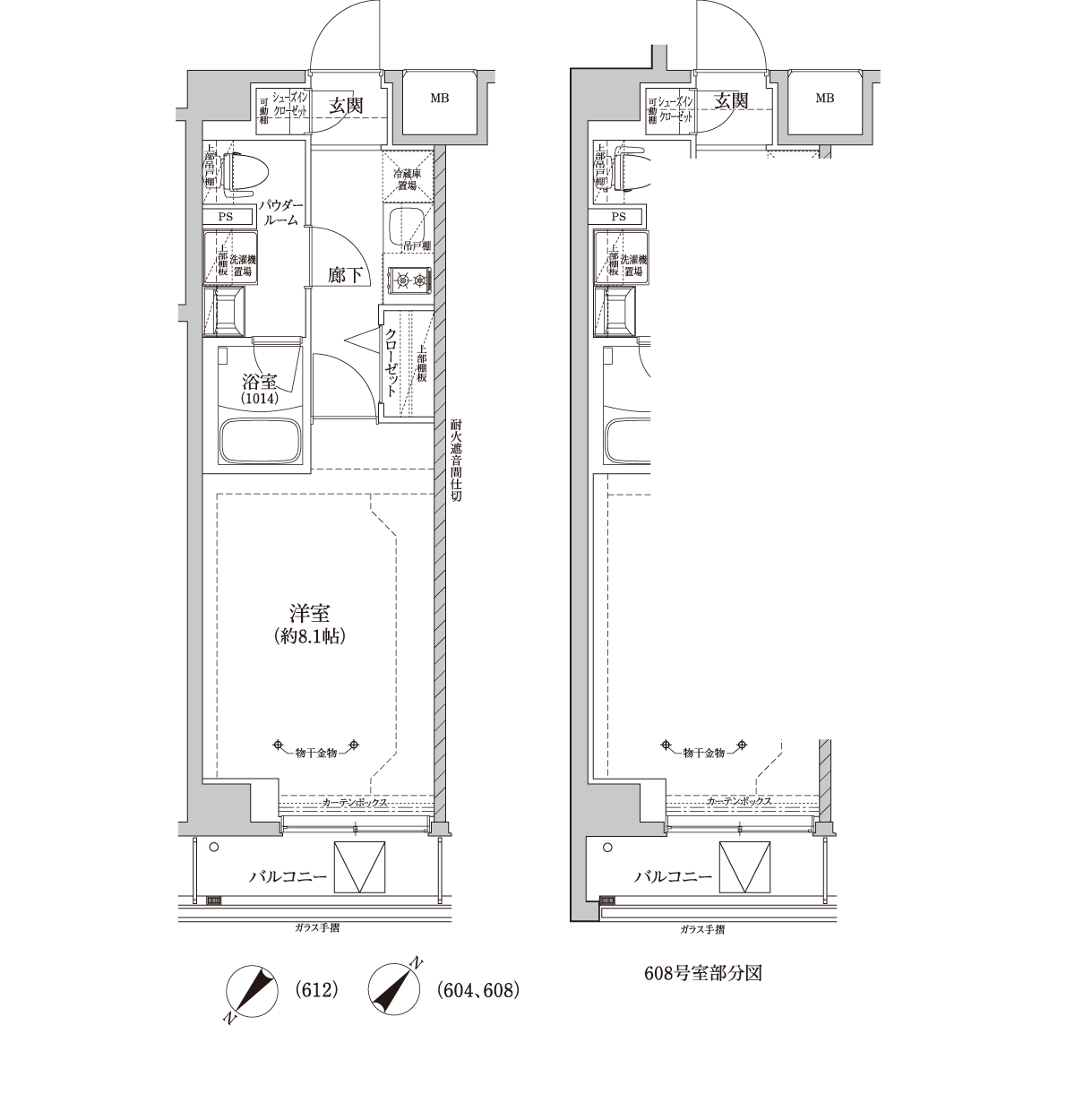
PLAN
C1’
TYPE
1K
1K
専有面積/
25.81
㎡(
約7.80
坪)
※MB面積含む
バルコニー面積/2.90㎡(約0.87坪)
ROOM NUMBER/604,608,612
印刷する
お問い合わせ