リルシア横濱反町

image photo

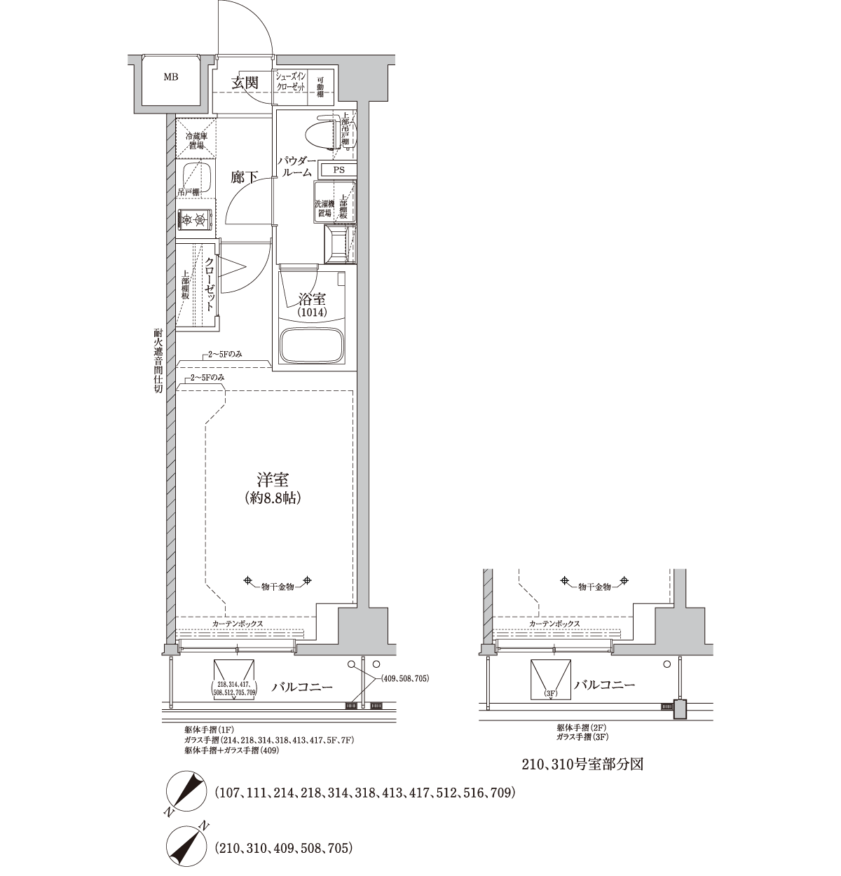
PLAN

A4
TYPE

1K

1K

専有面積/25.81㎡(約7.80坪)
※MB面積含む
バルコニー面積/2.90㎡(約0.87坪)

ROOM NUMBER/
107,111,210, 214,218,310,314, 318,409,413,417,508, 512,516,705, 709

印刷する
トップへ戻る