リルシア横濱反町

image photo

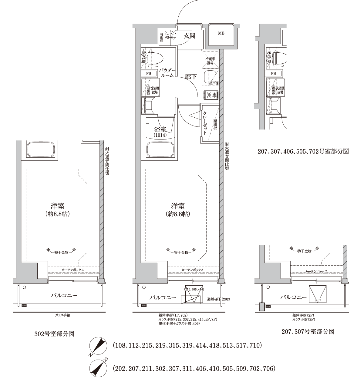
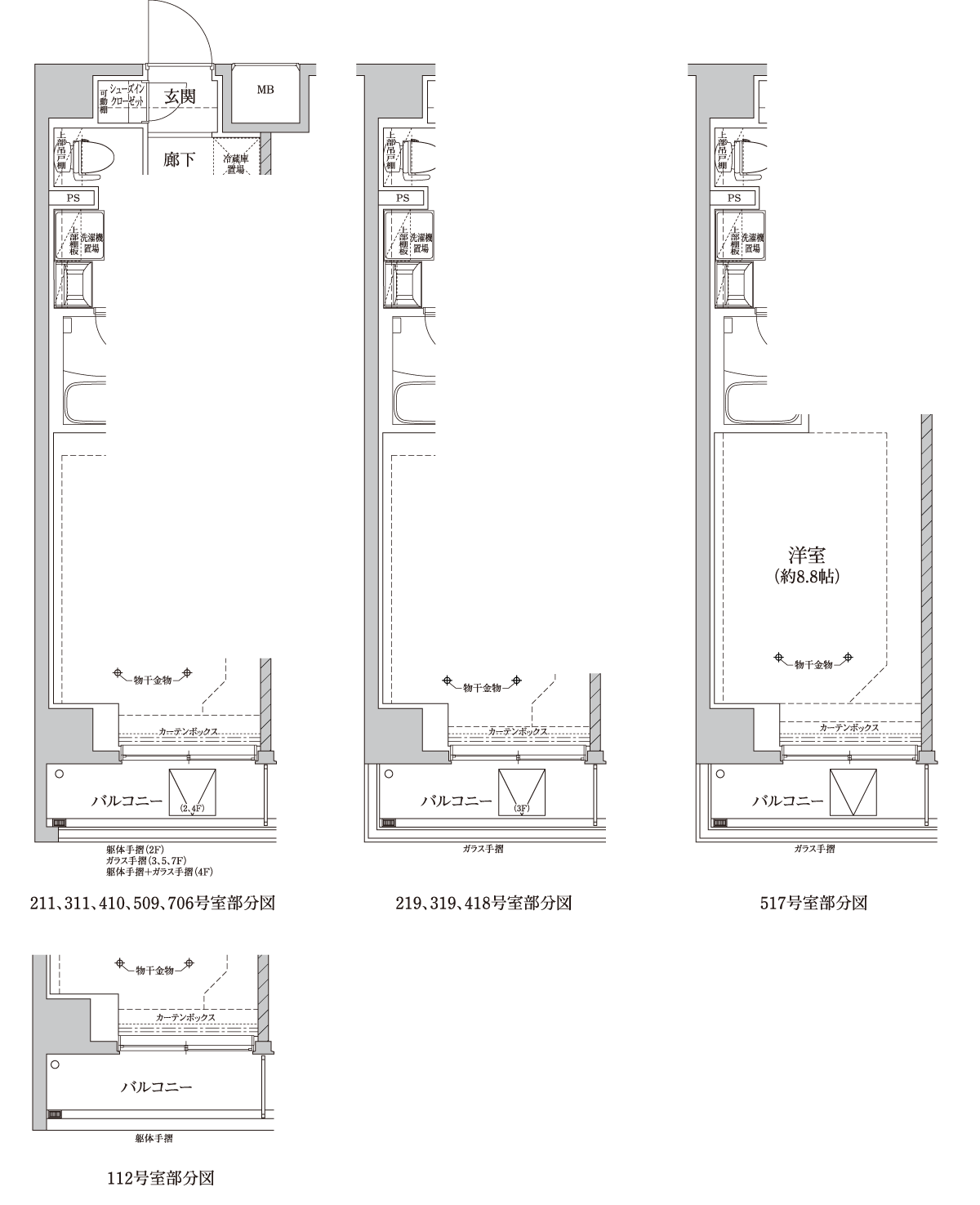
PLAN

A1'
TYPE

1K

1K

専有面積/25.81㎡(約7.80坪)
※MB面積含む
バルコニー面積/2.90㎡(約0.87坪)

ROOM NUMBER/108,112,202, 207,211,215,219, 302,307,311,315, 319,406,410,414,418,505,509,513, 517,
702
,706,710

印刷する
トップへ戻る